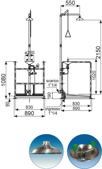
Doccia lavaocchi [id_1279]

Codice: SC730xx

Doccia a pavimento combinata con lavaocchi

  • Struttura: acciaio galvanizzato verniciato epossidicamente
  • Componenti interne: materiale anticalcare e anticorrosione
  • Installazione a pavimento
  • Soffione completo di valvola a chiusura manuale
  • Azionamento a mezzo tirante rigido con impugnatura a triangolo
  • Lavaocchi a flusso areato
  • Azionamento con valvola a chiusura manuale
  • Push laterale e a pedana
  • Soffione e vaschetta in polipropilene o in acciaio inox